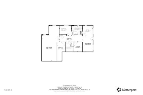
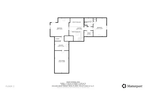
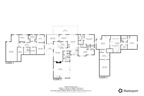
Property Details
Basic Information
- Property Type: Single Family
- MLS Number: 5061183
- MLS Status: Active
- Acreage: 0.62
- Virtual Tour: Virtual Tour
Exterior Features
Features
- Acreage: 0.62
- Area: NH-Sullivan
- Driveway: Gravel
- Foundation: Concrete
- Parking Spaces: 2
Utilities and Appliances
Utilities and Appliances
- Heat System: Hot Air
Community
Schools
- High School: Lebanon High School
- Elementary School: Grantham Village School
Amenities
- Accessibility Amenities: 1st Floor 1/2 Bathroom,1st Floor 3/4 Bathroom,1st Floor Laundry



























































